别墅怎么用路由器组网(500平别墅无缝漫游:两套领势Velop AC6600路由器WiFi组网实战)
别墅大户型用户的苦恼
对于大户型或者别墅用户来说,组建无线网络是头疼的,毕竟无论哪款路由器,都无法做到一个路由器全屋覆盖,尤其是对于别墅用户来说,组网传统方案只剩下AC+AP,但是AC+AP也有自己的局限,具体表现为网速慢,穿墙一般以及前期布线要考虑全。
华硕倒是推出了Aimesh方案,但是Aimesh方案整体来说适合已经有华硕路由器的用户,而且Aimesh也不容易做到别墅户型的全屋无缝覆盖。
现在来看,如果对网络要求比较高的别墅大户型用户,可以选择mesh类型路由器,配置方便简单,覆盖全面,哪里信号不好哪里摆一个,最主要的是只要有电源插孔就可以摆放,真正做到全屋覆盖。

这次的组网实战,也是基于我的好奇心和朋友的邀约,来实打实挑战下上下5层外带阁楼,整体面积500多平的大别墅,两套领势velop AC6600是否能圆满完成任务?

其实这次挑战是后续增加的,前期只有一套AC6600,经过实测只能覆盖3层多一些,地下室负一层和阁楼基本只剩下2.4g频段,实测能覆盖的三层数据还不错,因此又增加了一套AC6600,做到每层一个全屋覆盖。
Mesh路由器的原理可以自己去百度一下,从民用角度来说,这是最佳的最简单方案之一,特别适合前期没有考虑AC+AP方案设计的用户。

因为可以有多种组网方式,Mesh方案的路由器之间连接非常稳固,掉线也可以自动连上,真正做到懒人神器。
我自己家里用的是华硕AImesh方案,本质上来说也是在固件上提升的一种mesh变种方案,前期稳定性比较差,后期还不错。
开箱

这套设备推出来也有一段时间了,AC6600是指三套套装,单个为AC2200,其中两个5G频段867Mbps,2.4g 400Mbps,对于手机和平板上网看视频传输文件也是足够了,关键是全屋覆盖加低延迟加稳定性,要比速度更重要。

这套设备单个mesh路由器节点理论上可以覆盖140平左右的面积,但是前提是位置比较关键,毕竟就连单个做路由器强悍的华硕,也做不到连穿三堵墙还能有较好的信号。
三个套装,理论上可以覆盖140X3=420平米的房间,实际上会因为各种因素而影响。

电源适配器是白色款,不过体积有点大,很容易将墙壁五孔插座占为己有。

可转接其他标准的插头设计,美标日标也能用。

随机只提供了一根扁平网线,长度倒是比很多品牌提供的网线更长,也更精致一些。

三个路由器一字摆开,不区分主路由次路由是领势的一大特点,任意连接都可以。

天线位于顶部,所有有大量散热孔,指示灯也位于顶部。

所有接口都位于底部,包括独立开关(好评),重置按钮,电源接口已经两个千兆口。

网线和电源线通过这里输出,也可以在底部隐藏一部分。

机身上也有大量散热孔洞。
组网实战一套篇
前期只用了一套,我们先看一套的数据。
首先上户型图。
这套别墅上下一共五层,另外赠送了阁楼,姑且认为是五层半,地下有两层,负二层为停车场和工作间,单层面积在100平左右,总面积500多平不算阁楼。
前期路由器主要覆盖楼上1、2、3层,负1负2和阁楼暂时不考虑。

一楼户型图,路由器位于A位置,不过因为设计的问题,A位置并不是很好,有点干扰信号。
其中C和B是我测试无线网的点。
A为主路由。

我说的A位置不是特别好,是因为路由器位于柜门之后,后期可能要对柜子做一个简单改造,尽量让路由器出于比较空旷的位置。
先来配置路由器,这点是领势的强项,简单,用手机就可以搞定,虽然我本身比较喜欢华硕的产品,但是华硕的配置绝对是geek级别的,远没有领势简单快捷。
配置之前先要了解家中的网络状况,是光猫拨号还是路由器拨号,如果是光猫拨号,设置界面就非常简单了,如果是路由器拨号,还需要设置主路由的拨号,这个需要先咨询下运营商。
朋友的别墅网络属于后者,也是常见的路由器拨号。
通电、插上网线。
下载领势APP。
这大概是最简单的设置APP了,哪怕你只有一点点基础,都可以自己设定完成,但是有一点比较麻烦,那就是手机端设置的只有混合模式,5G和2.4G信号混合在一起,对于只支持2.4G的智能家电来说,是识别不出来的,要分开2.4G和5G频段,需要在网页端设置。

用手机设置直接摆脱了传统设置的繁琐,连上光猫或者路由器,根据提示操作,这里我朋友家并不是光猫拨号,所以要在设置界面设置拨号。

如果你家是光猫拨号,那这一步都可以省下来了。

Velop首次配置比较慢,需要有耐心。
主路由或者说第一个节点连上网络后,我们就要开始设置节点的连接了,按照网上网友经验,以及我个人的体验,最佳的方案如下:
将节点路由器放在主路由旁边配置,连接上节点后断电,第二个节点路由器放到主路由旁边通电开始配置,连接上后再断电配置第三个
如果你第二个节点路由器连上主路由后依旧打开的话,恭喜你,初次配置要等待很长时间,长的无法直视,这也是我评测过程中体验最大的槽点。

节点路由都配置OK后,按照距离主路由距离由近到远挨个放置,尽量保证节点路由的指示灯颜色为蓝色,再不济也要橙色,千万别是红色,这个需要自己认真调整位置了。

所有节点路由都配置完全后,记得将地区选择为澳大利亚或者美国,这样信号强度会更好一些。
如果你家有智能家居设备,记得将WiFi模式修改为非混合模式,混合模式是将2.4G和5G混合在一起。
我们先看看1楼的无线覆盖参数。
我测试的时候因为主路由是位于柜门之后,而且并非垂直摆放,而是放倒摆放,主路由的信号受了一点影响。
领势AC6600系列天线全部位于顶部,所以千万不要倒置摆放,再不济也要保证头不能朝下。
测试设备为早期款2015 Macbook pro,使用802.11ac 3x3 MIMO天线,最高连接速率是1300Mbps,测试软件是WiFi explorer,不过领势最高的5g无线速率为867Mbps,2.4g为400Mbps,绰绰有余了。

因为是混合信号,所以无线网自动连接上了信号最强的5G频段,RRSI方面,为-53dbm,数值越接近0越好,TX数值为585Mbpds;信号强度方面,5G为75%,信噪比39dB,2.4G为85%,信噪比52dB,这个数值越高越好。
可以看出藏在柜门之后而且呈现卧倒趋势的主路由信号强度受影响反应在了测试数据上。
我们再来看看B处的测试成绩,这块是开放式厨房,信号在一楼相对属于比较差的位置。

数据来源于B处厨房中岛拐角位置。

信号强度方面,5G为48%,信噪比25dB,2.4G为63%,信噪比34dB。可以看到因为多墙的缘故,5G衰减的比较厉害,但是2.4G依旧有不错的覆盖率。
现在来看看二楼平面图。

二楼陈列室F位置为一整块玻璃砖,玻璃对于信号应该没什么影响,理论上放F位置是最好的,但是因为两堵墙的缘故,衣帽间甚至是三堵墙,如果放置在F位置,E的信号会更差,所以我将路由器放置在D处。

D处位置的路由器。

起居室的沙发。
我测试了D处和E处的无线信号。

D处信号是最好的,因为路由器没遮挡。

可以看到二楼的无线路由器信号比一楼更优秀,这也是Mesh分体式的意义,只要位置摆放的合适,信号也是很强的。
无线网同样自动连接上了信号最强的5G频段,RRSI方面,为-37dbm,比1楼C位置更优秀,TX数值为400Mbpds;信号强度方面,5G为93%,信噪比61dB,2.4G为100%,信噪比80dB。

E处的位置大概隔了两堵墙,我也测试了一下这个位置的信号强度,基本上这个位置OK,整个二楼都没有问题了。

信号强度方面,5G为48%,信噪比25dB,2.4G为75%,信噪比39dB。2.4G信号穿墙的特性依旧比较显著,不过5g信号表现也还可以。

三楼位置摆放我来回在G和H切换,理论上路由器放在衣帽间是最好的,因为这样就和二楼的Mesh节点路由器相隔一层楼板,但是衣帽间没有插座……
最终我将路由器摆放在H位置。

无线网自动连接上了信号最强的5G频段,RRSI方面,为-29dbm,TX数值为702Mbpds;信号比2楼和1楼都优秀,信号强度方面,5G为99%,信噪比70dB,2.4G为100%,信噪比76dB。

也测试了G位置的信号强度,也是三楼信号理论上最差的地方。

信号强度方面,5G为53%,信噪比28dB,2.4G为78%,信噪比45dB。
一套路由器挑战成功,可以看到每一层均有不错的表现,但是5层还外带阁楼,一套显然不够,我也特意去测试了下阁楼,也就是三楼之上的信号表现。

阁楼没有路由器,我随意挑了个地方测试,阁楼只有两个房间,这是其中之一。

可以看到阁楼上信号衰减的只剩下2.4G频段了,Tx数值只有26Mbps,因此想要完整覆盖整个别墅,至少还需要一套AC6600。
组网实战两套篇

第二套AC6600,全网覆盖很重要。

6个路由器齐全了。
阁楼户型图没有,不过我这次将路由器放在了另一个房间,原因是这是唯一有电源插座的地方……

阁楼相对墙体较少,结构简单。
先来看看信号最好的地方表现。

混合信号同样自动连接上了5G频段,表现也是最好的一层,Tx速率867Mbps,Rssi-31dBm,信号强度方面,5G为98%,信噪比70dB,2.4G为93%,信噪比61dB。
那么之前表现比较差的区域现在如何呢?

信号强度方面,5G为40%,信噪比21dB,2.4G为50%,信噪比25dB,可以刷抖音看剧了。
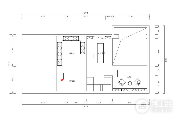
看完阁楼我们继续下潜,这次是负一层。

路由器摆放位置还是受插座限制了,而且因为主要钢筋结构都是在负一和负二,导致信号屏蔽有些厉害,理论上I区域是最好的,我将路由器设置在I区域。

先临时摆放下,后期还是要调整下位置。

I区域信号数据如下:

混合信号5G频段,Tx速率585Mbps,Rssi-51dBm,信号强度方面,5G为81%,信噪比44dB,2.4G为86%,信噪比53dB,表现还不错。

信号最差的J区域表现如何?

信号强度方面,5G为40%,信噪比21dB,2.4G为38%,信噪比13dB,衰减有点厉害,毕竟隔了两堵墙和电梯桁架,不过如果摆放的时候将路由器调整到楼梯口位置,理论上表现也更好。
虽然衰减有点厉害,但是刷抖音、看视频还是不卡的,打王者荣耀也不会出现高延迟现象,这个我们下面聊。
最后是负二层位置。

我将路由器摆放在K位置,后期我朋友将路由器挪到L位置,信号覆盖就更好了,K位置并不是很好的选择。

这个点信号表现如何呢。

混合信号唯一一个链接到2.4G频段的路由器,应该选择L位置的,不过后期我也没重复测试了,Tx速率145Mbps,Rssi-55dBm,信号强度方面,5G为69%,信噪比38dB,2.4G为89%,信噪比56dB。
最后来看看M位置表现,这里有好几个智能灯,需要无线信号覆盖才能使用。

信号强度方面,5G为28%,信噪比15dB,2.4G为50%,信噪比25dB。可以看出来5G WiFi信号因为负二楼各种钢筋混凝土屏蔽,表现不是很好,但是2.4G完全没问题。

我用王者荣耀做了一个测试,这个测试是在1、2、3楼爬上爬下录制的,全程4分37秒,我截取了全程中几个延迟有变化的时间段,这几个瞬间的变化是切换到了其他节点路由器。

正常延时迟76ms,节点位置切换到137ms,瞬间又回到了64ms。

正常延迟52ms,节点位置切换到106ms,很快又回到了51ms,过程中没有任何卡顿。
最后聊聊这个产品的不足和优势
领势velop AC6600的最大优势就是稳定,覆盖率相当不错,节点切换没有高延迟现象,不会出现卡顿现象,而且配置比较简单,如果是正常户型的话,两支套装就能完整覆盖,对于别墅户型来说,一层一个也可以较为完美覆盖。
当然无线组网的优势在于,哪里信号差了,就可以摆哪里,位置也只受电源插头限制,如果遇上对信号强度要求特别完美的用户,只要增加路由器或者调整位置就能实现。
朋友对于这两套组网的AC6600特别满意,目前又为自己的第二套大平层采购了两套AC6600,只能说有钱任性了。
当然不足之处也是有的,那就是配置过程严重考验你的耐心,耗费时间太久,期望后期能改进一下,但是话又说回来了,配置好后基本就不用管了,最多就是断电重启的节奏,也还是可以忍受前期配置耗费太长的缺陷了。
另外就是千兆lan口太少,velop也可以有线回程,听说后期会推出4个前兆口的升级款,倒是有些期待了。






